JK3D’s Cactus Homes received an Honorable Mention in Phase One of ICON’s Initiative 99 project and will advance to the second and final phase along with other winners. Initiative 99 is a global architecture competition to reimagine affordable housing through the nexus of architecture and 3D printing. ICON announced its honorees at its official SXSW 2024 showcase event on March 12 in Austin.


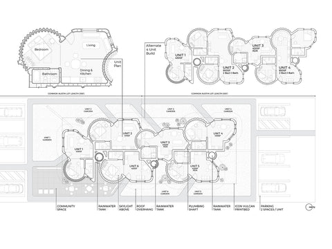
Drawing inspiration from the remarkable intelligence of succulents, in convergence with cutting-edge 3D-printing technology, JK3D’s design features 9 individually unique cactus shaped forms with an inherent structural pleating. 6 of which create habitation units, and 3 rainwater storage tanks. Covered by an inverted gable roof which collects rainwater, while providing shading. The 6-units share a central utility wall servicing kitchens and bathrooms for efficiency where the roof is lowest. Skylights bring in daylight and allow for venting through stratification where the roof is high. The cactus homes exemplify the potential for affordable, resilient, individually unique, sustainable, and community-based housing. Inspired by nature and made possible through advanced digital design and digital fabrication
Team: Julia Koerner, Kais Al-Rawi, Oliver Hamedinger, Stefanie Thaller, Kinamee Rhodes and Naomi Neururer



